MONOBLOCCO EQUIPAGGITO CON:
-IMPIANTO ELETTRICO COSTITUITO DA 4 PUNTI LUCI
-LAVABO
-DOCCIA
-SCALDABAGNO
OPTIONAL:
-CLIMATIZZATORE
-ARREDO
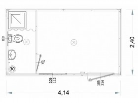
peso
900KG
larghezza
2,40 MT
altezza
2,45 MT
lunghezza
4,14 MT
tipo presa per alimentazione
230V 16A
tipologia allestimento
CON SERVIZI LATERALE